Réalisation MAISON OSSATURE BOIS SUR MESURE

Maison ossature bois Parbayse

Les clients ne souhaitaient pas un bardage naturel. Leur choix s’est porté vers une mixité des revêtements (Enduit et bardage peint). Au niveau de la toiture, si la partie centrale est en tuiles plates noires, les zones cuisine et chambres ont été traitées en toiture terrasse. Celui de la cuisine est accessible depuis le palier R+1. Enfin, tous les isolants sont biosourcés.

Informations Complémentaires

Lieu : Parbayse

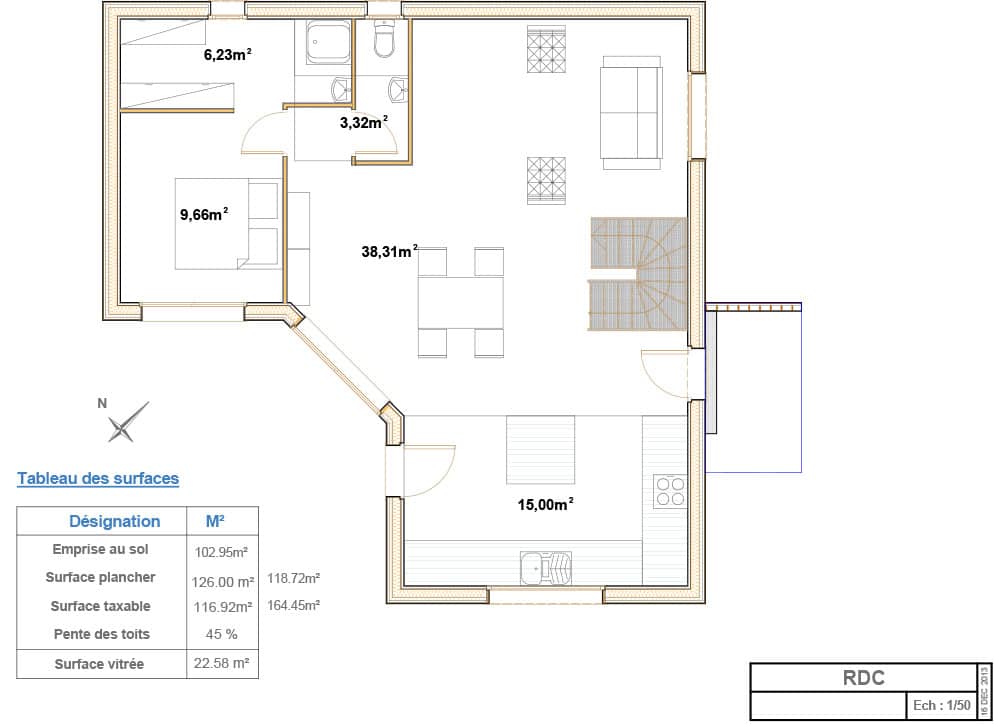
Surface habitable de la maison ossature bois Parbayse : 117m2 + 45m² de sous-sol.
Année de réalisation : 2014
Fondations : La maison est posée sur un sous-sol maçonné de 45m².
Charpente : Toiture Terrasse (lamellé collé et poutre I). Charpente industrielle pour la toiture 2 pentes.
Origine bois : France pour l’ossature des murs.
Revêtements extérieurs murs : Bardage sapin peint d’usine. Enduit type RME 3 couches.

Isolation :

  • Murs : 140mm ouate de cellulose entre montants + 60mm fibre de bois en ITE
  • Toiture : 300mm ouate de cellulose soufflée dans les combles perdues. Fibre de bois 100mm entre chevrons + ITE PU en 120mm sur la toiture terrasse sous étanchéité (Membrane EPDM Firestone).
  • Sol : TMS 80mm
  • Plancher intermédiaire: 300mm de Ouate de cellulose entre solive + isolant phonique en fibre de bois 10mm sur plancher phaltex.
  • Cloison : fibre de bois de 40mm.

Chauffage : Poêle à granulés.
ECS : Ballon eau chaude thermodynamique.
VMC : SIMPLE FLUX HYGRO B UNELVENT©
Menuiseries extérieures : Aluminium RAL 7016 avec volets roulants tablier aluminium électriques.
Couverture : Membrane EPDM Rubbergard 1.15mm de chez FIRESTONE. Tuiles plates noires.

Voir les plans

Cliquez sur l'image pour agrandir

Un projet ?

    Vous êtes ?

    Je veux réaliser mon projet dans...

    Je possède un terrain










    Maisons Côté Bois 2026 | Tous droits réservés