Collection Modèle Ranch

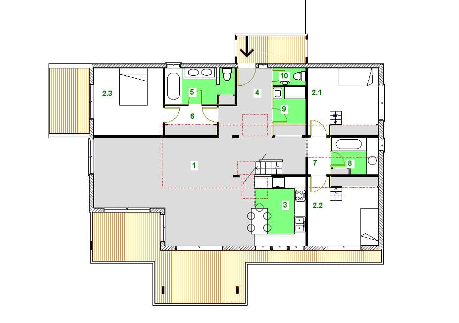
La surface totale habitable : 157² m²
Surface habitable RDC: 121 m²
Surface habitable étage: 36 m²

3 chambres / 5 pièces

Informations Complémentaires

Une maison qui offre grâce à sa charpente traditionnelle des volumes multiples et lumineux avec un grand espace vie se prolongeant sur une terrasse protégée. Il y a également une suite parentale de 23 m2. Mezzanine dans le séjour et les chambres.

Existe également en 121m² et 100m² sans mezzanine.

Tous les modèles de maisons ossature bois MAISONS COTE BOIS sont personnalisables.

Pour plus de renseignements sur le modèle, prenez contact avec une de notre agence de Mérignac.

Voir les plans

Cliquez sur l'image pour agrandir

Un projet ?

    Vous êtes ?

    Je veux réaliser mon projet dans...

    Je possède un terrain










    Maisons Côté Bois 2026 | Tous droits réservés